Ma sélection
Mes plans maison
Aucune sélection
Mes terrains
Aucune sélection
Mes maisons + terrains
Aucune sélection
Construction d'une maison Ully-Saint-Georges (60730) 249 700 € Construction d'une maison Ully-Saint-Georges (60730) 249 700 €
Construction d'une maison Ully-Saint-Georges (60730) 249 700 €

Votre maison clé en main à Ully-Saint-Georges (60) pour 249 700 € n°5023700

Découvrez cette offre maison + terrain clé en main située à Ully-Saint-Georges dans le 60 et réalisez votre projet de construction dans l'Oise.

Partager

Maison neuve à Ully-Saint-Georges de 509 m² pour 249 700 € offre 5023700

Cette offre maison et terrain tout-en-un maison clé en main sur un terrain de 509 m² située à Ully-Saint-Georges (60730) pour 249 700 € vous est proposée par notre agence Résidences Picardes WARLUIS.

Offre maison et terrain tout inclus à Ully-Saint-Georges :
Pour tout renseignement, contactez uniquement StéphanePRUD'HOMME.O6 86 28 27 97 (laissez un message si besoin)
GOUTTEZ AU CONFORT D'UNE MAISON NEUVE GARANTIE 10 ANS : Economique , lumineuse , bien isolée , avec une grande pièce de vie
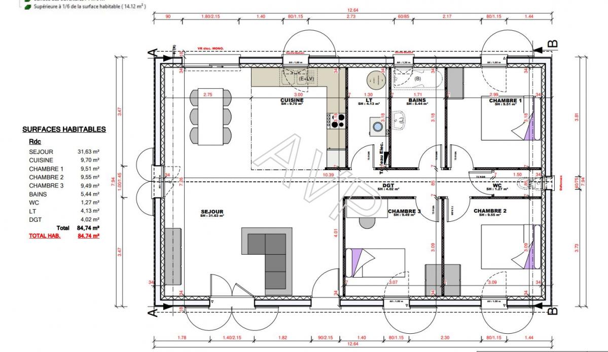
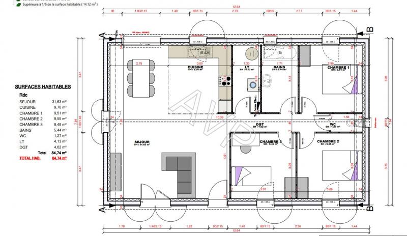
Cette maison basse consommation de plain pied de 85 m2 habitables , offre de belles prestations et se compose d’un grand espace de vie ouvert de 32m2 par son séjour avec baie vitrée et sa cuisine .
 vous y trouverez : 3 chambres , cellier , wc séparé , cuisine ouverte

Ce pavillon , construit avec toutes les dernières normes RE2020 , est confortable et très performant grace à son élévation en bloc terre cuite, son isolation ultra développée , ses menuiseries en pvc
et son chauffage économique par pompe à chaleur avec éventuellement plancher chauffant ou clim . Comprenant aussi: l'enduit gratté , les sanitaires , des tuiles plate en terre cuite , le carrelage en 45x45 etc ..
Cette maison connectée vous permettra également de gérer à distance (avec votre téléphone portable) la partie chauffage ainsi que la gestion des volets roulants électriques automatisés .
Nous proposons des pavillons sur-mesure et des plans 100% modifiable avec contrat de construction de maison individuelle, suivant la loi du 19/12/1990.

Nous sommes là pour vous accompagner sur la partie recherche de terrain , configuration de la maison et simulation de financement gratuite par notre courtière
Si besoin , sachez que nous pouvons travailler ensemble sur un autre plan de maison ou sur une autre proposition de terrain en fonction de vos préférences ou budget.


Tarif comprenant : Terrain + Frais de notaire +Frais annexe (comprenant: viabilisations , raccordements , évacuations des eaux pluviales , accès chantier ) + Maison + Assurance dommage ouvrage
(Tarif hors : faiences , peintures, parquets à l'étage et dans les chambres et taxes, qui sero

Construction d'une maison Ully-Saint-Georges (60730) 249 700 € offre 5023700

  • Département : OISE (60)
  • Commune : Ully-Saint-Georges
  • Surface totale : 509
  • Prix du terrain : 249 700 €
  • Date de mise en ligne : 19/01/2026
Construction d'une maison Ully-Saint-Georges (60730) 249 700 €
Et aussi...
Mentions légales
  • Terrain proposé par un partenaire foncier selon disponibilités (hors droit d'enregistrement et frais de notaire).
  • Maison proposée avec un contrat de construction de maison individuelle (hors branchements et raccordements, papiers peints, peintures, revêtement de sol dans les chambres, restants à charge du client).
    Construction conforme à la RE2020.
    Assurances et garanties du constructeur comprises (RC professionnelle, décennale, dommage ouvrage).
nos offres maison + terrain à moins de 20 km Votre maison neuve à proximité de Ully-Saint-Georges dans l'Oise

C'est grâce à notre important réseau de partenaires fonciers que Résidences Picardes, filiale du Groupe BDL, est capable de vous proposer une liste non exhaustive d'offres maisons clé en main aux alentours de Ully-Saint-Georges et régulièrement mise à jour par nos agences.

Trouvez ainsi votre maison neuve dans l'Oise ou établissez votre projet de construction en choisissant l'un de nos terrains à bâtir dans le 60 et un modèle de maison !

Intéressée par cette offre à Ully-Saint-Georges dans l'Oise ?

Faites-nous part de votre demande et de votre projet construction : Résidences Picardes, premier constructeur de maisons en Picardie, réalise votre étude gratuite !

Directement en agence
En ligne
Demande d'informations, devis gratuit, rendez-vous avec un expert Résidences Picardes ?
Faites-nous part de votre demande !
Chargement...
Informations complémentaires
protection par reCAPTCHA -
Vous ne trouvez pas d'offre qui vous convienne ?

Inscrivez-vous à l'une de nos alertes terrains et recevez les dernières offres maison et terrain mises en ligne chaque semaine dans le département de votre choix !

Recevoir chaque semaine nos dernières offres
Inscrivez-vous aux alertes terrain et recevez par mail les dernières offres mises en ligne.
Chargement...
protection par reCAPTCHA -