Ma sélection
Mes plans maison
Aucune sélection
Mes terrains
Aucune sélection
Mes maisons + terrains
Aucune sélection
Construction d'une maison Chauny (02300) 190 896 € Construction d'une maison Chauny (02300) 190 896 €
Construction d'une maison Chauny (02300) 190 896 €

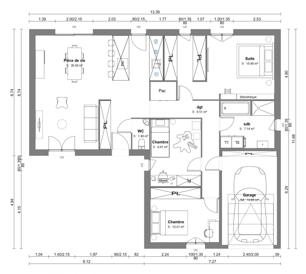
Votre maison clé en main à Chauny (02) pour 190 896 € n°5075611

Découvrez cette offre maison + terrain clé en main située à Chauny dans le 02 et réalisez votre projet de construction dans l'Aisne.

Partager

Maison neuve à Chauny de 650 m² pour 190 896 € offre 5075611

Cette offre maison et terrain tout-en-un maison clé en main sur un terrain de 650 m² située à Chauny (02300) pour 190 896 € vous est proposée par notre agence Résidences Picardes SAINT QUENTIN.

Offre maison et terrain tout inclus à Chauny :
Belle maison contemporaine nichée au centre d'un joli lotissement campagnard.

Construction d'une maison Chauny (02300) 190 896 € offre 5075611

  • Département : AISNE (02)
  • Commune : Chauny
  • Surface totale : 650
  • Prix du terrain : 190 896 €
  • Date de mise en ligne : 24/02/2026
Construction d'une maison Chauny (02300) 190 896 €
Et aussi...
Mentions légales
  • Terrain proposé par un partenaire foncier selon disponibilités (hors droit d'enregistrement et frais de notaire).
  • Maison proposée avec un contrat de construction de maison individuelle (hors branchements et raccordements, papiers peints, peintures, revêtement de sol dans les chambres, restants à charge du client).
    Construction conforme à la RE2020.
    Assurances et garanties du constructeur comprises (RC professionnelle, décennale, dommage ouvrage).
nos offres maison + terrain à moins de 20 km Votre maison neuve à proximité de Chauny dans l'Aisne

C'est grâce à notre important réseau de partenaires fonciers que Résidences Picardes, filiale du Groupe BDL, est capable de vous proposer une liste non exhaustive d'offres maisons clé en main aux alentours de Chauny et régulièrement mise à jour par nos agences.

Trouvez ainsi votre maison neuve dans l'Aisne ou établissez votre projet de construction en choisissant l'un de nos terrains à bâtir dans le 02 et un modèle de maison !

Et aussi 2 offres à proximité de Chauny correspondant à vos critères de recherche
Intéressée par cette offre à Chauny dans l'Aisne ?

Faites-nous part de votre demande et de votre projet construction : Résidences Picardes, premier constructeur de maisons en Picardie, réalise votre étude gratuite !

Directement en agence
En ligne
Demande d'informations, devis gratuit, rendez-vous avec un expert Résidences Picardes ?
Faites-nous part de votre demande !
Chargement...
Informations complémentaires
protection par reCAPTCHA -
Vous ne trouvez pas d'offre qui vous convienne ?

Inscrivez-vous à l'une de nos alertes terrains et recevez les dernières offres maison et terrain mises en ligne chaque semaine dans le département de votre choix !

Recevoir chaque semaine nos dernières offres
Inscrivez-vous aux alertes terrain et recevez par mail les dernières offres mises en ligne.
Chargement...
protection par reCAPTCHA -