Ma sélection
Mes plans maison
Aucune sélection
Mes terrains
Aucune sélection
Mes maisons + terrains
Aucune sélection
Construction d'une maison Amiens (80000) 397 690 € Construction d'une maison Amiens (80000) 397 690 €
Construction d'une maison Amiens (80000) 397 690 €

Votre maison clé en main à Amiens (80) pour 397 690 € n°4995326

Découvrez cette offre maison + terrain clé en main située à Amiens dans le 80 et réalisez votre projet de construction dans la Somme.

Partager

Maison neuve à Amiens de 414 m² pour 397 690 € offre 4995326

Cette offre maison et terrain tout-en-un maison clé en main sur un terrain de 414 m² située à Amiens (80000) pour 397 690 € vous est proposée par notre agence Résidences Picardes SALOUEL.

Offre maison et terrain tout inclus à Amiens :
Le groupe BDL vous propose un projet de construction d’un projet personnalisée compris aménagement paysagé.
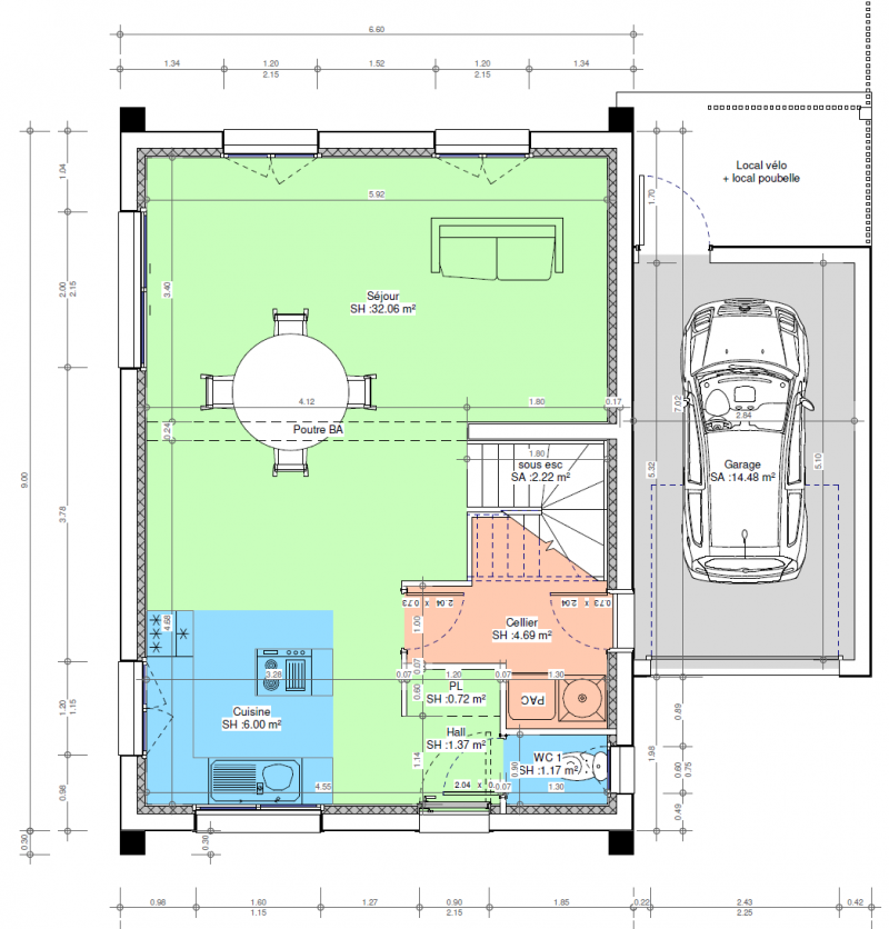
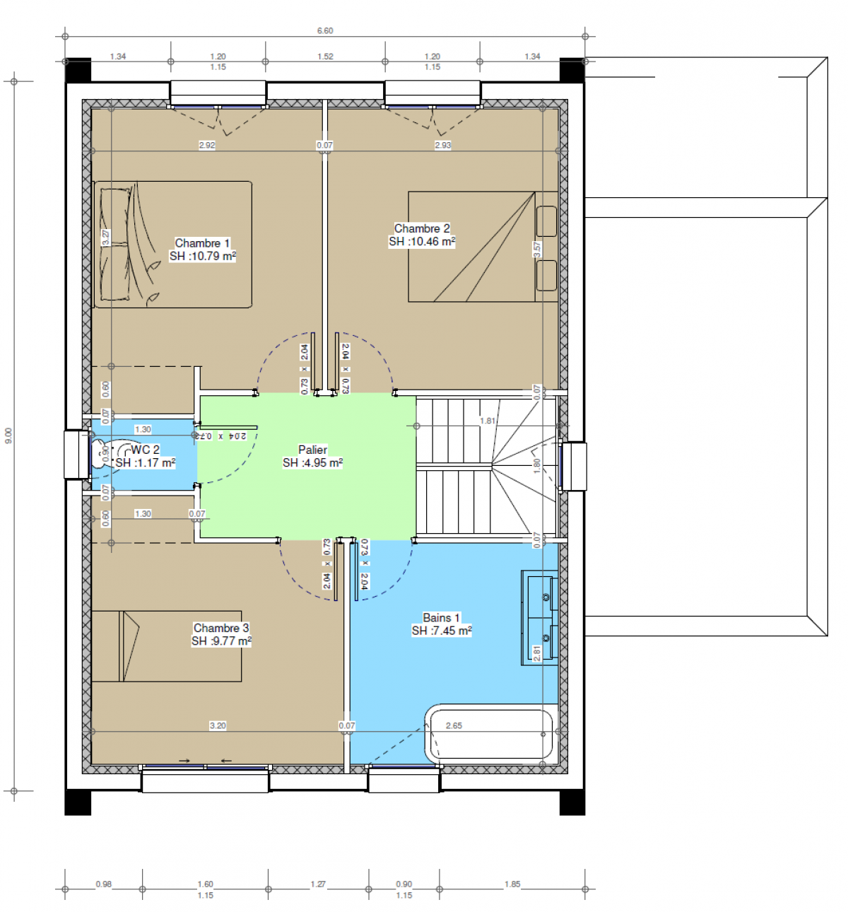
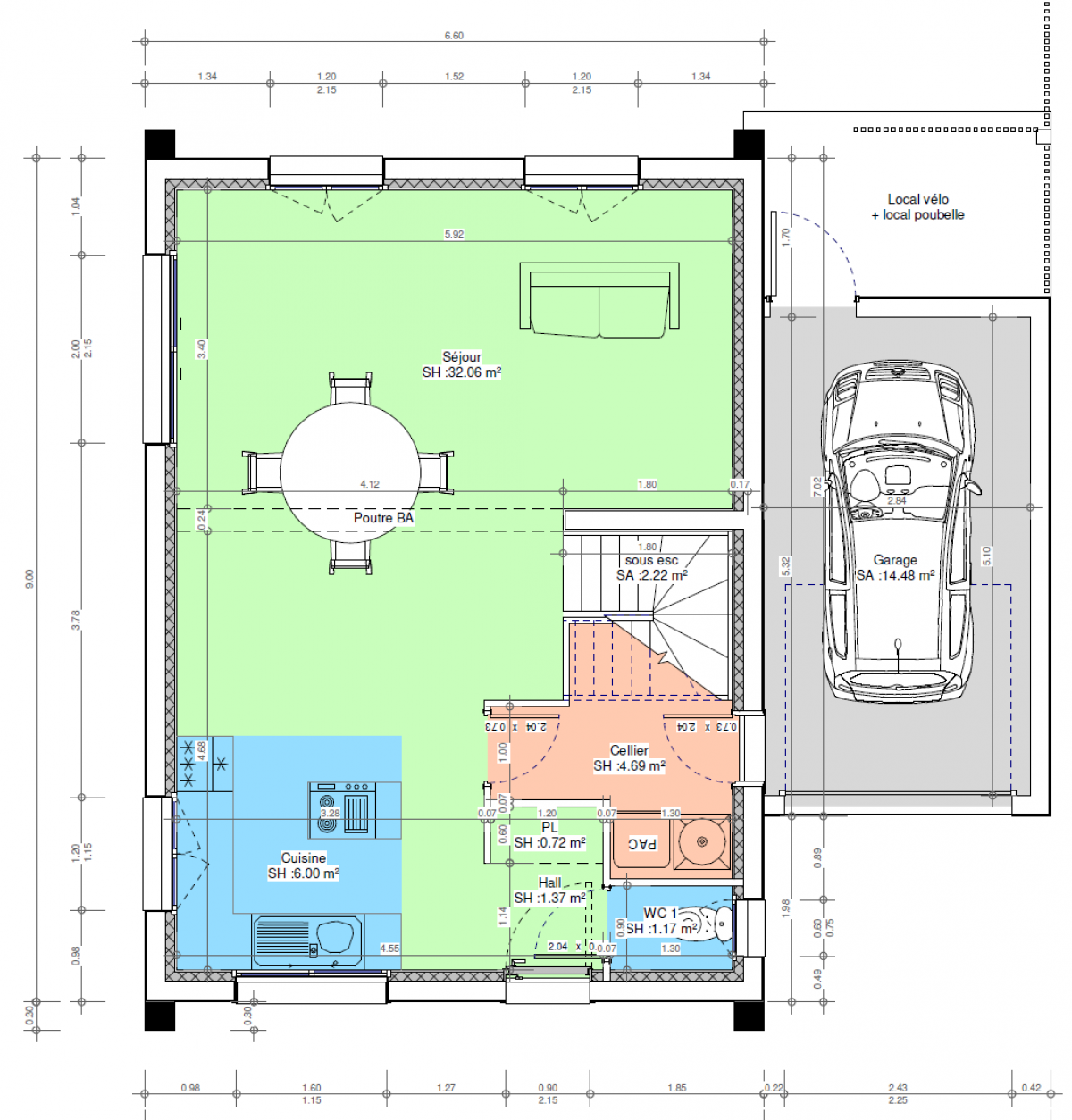
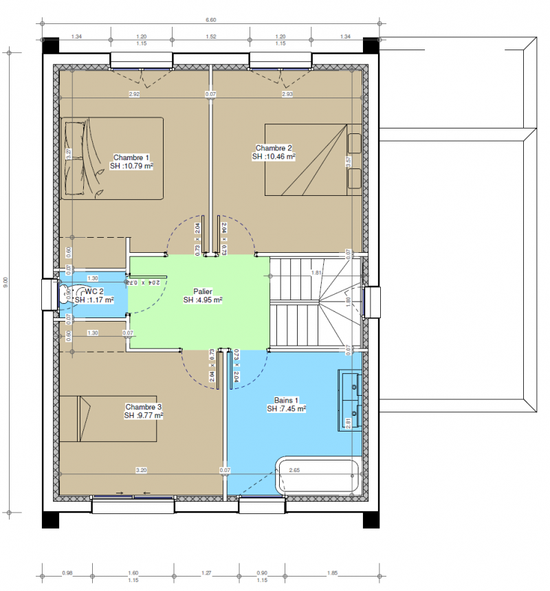
Maison moderne de 90M² en R+1 situé sur la commune d’Amiens, toutes commodités (commerces, écoles, etc …).
Ce pavillon neuf au normes RE2020, se compose d’un bel espace de vie ouvert, 3 chambres, 1 salle de bains, WC séparé, local technique et garage.
Maison offrant de belles prestations avec son élévation en bloc terre cuite, son isolation de type Hybris, ses menuiseries avec volets roulants électriques centralisés, chauffage par pompe à chaleur, carrelages pour les pièces de vie en 45X45, normes RE 2020 et test d’étanchéité.
Terrain de 414m², clôture, Enrobé, Plantation compris.
Renseignements par téléphone ou par mail pour votre projet de construction de maison individuelle.
Autres projets disponibles sur d’autres localités, plans sur-mesure en fonction de vos besoins et de votre budget.
Terrain proposé par un partenaire foncier selon disponibilité.
Pavillon proposé avec contrat de construction de maison individuelle, dans le cadre de la loi du 19/12/1990.
Branchements et raccordements inclus.
Hors papiers peints, peintures, revêtements de sol pour les chambres, qui sont chiffrés dans les travaux restant à la charge du client.
Différents modèles disponibles pour ce terrain.
Assurances et garanties du constructeur comprises (RC professionnelle, décennale, dommage ouvrage, garantie de livraison).
Restant à votre disposition.

Construction d'une maison Amiens (80000) 397 690 € offre 4995326

  • Département : SOMME (80)
  • Commune : Amiens
  • Surface totale : 414
  • Prix du terrain : 397 690 €
  • Date de mise en ligne : 19/12/2025
Construction d'une maison Amiens (80000) 397 690 €
Et aussi...
Mentions légales
  • Terrain proposé par un partenaire foncier selon disponibilités (hors droit d'enregistrement et frais de notaire).
  • Maison proposée avec un contrat de construction de maison individuelle (hors branchements et raccordements, papiers peints, peintures, revêtement de sol dans les chambres, restants à charge du client).
    Construction conforme à la RE2020.
    Assurances et garanties du constructeur comprises (RC professionnelle, décennale, dommage ouvrage).
nos offres maison + terrain à moins de 20 km Votre maison neuve à proximité de Amiens dans la Somme

C'est grâce à notre important réseau de partenaires fonciers que Résidences Picardes, filiale du Groupe BDL, est capable de vous proposer une liste non exhaustive d'offres maisons clé en main aux alentours de Amiens et régulièrement mise à jour par nos agences.

Trouvez ainsi votre maison neuve dans la Somme ou établissez votre projet de construction en choisissant l'un de nos terrains à bâtir dans le 80 et un modèle de maison !

Intéressée par cette offre à Amiens dans la Somme ?

Faites-nous part de votre demande et de votre projet construction : Résidences Picardes, premier constructeur de maisons en Picardie, réalise votre étude gratuite !

Directement en agence
En ligne
Demande d'informations, devis gratuit, rendez-vous avec un expert Résidences Picardes ?
Faites-nous part de votre demande !
Chargement...
Informations complémentaires
protection par reCAPTCHA -
Vous ne trouvez pas d'offre qui vous convienne ?

Inscrivez-vous à l'une de nos alertes terrains et recevez les dernières offres maison et terrain mises en ligne chaque semaine dans le département de votre choix !

Recevoir chaque semaine nos dernières offres
Inscrivez-vous aux alertes terrain et recevez par mail les dernières offres mises en ligne.
Chargement...
protection par reCAPTCHA -