Ma sélection
Mes plans maison
Aucune sélection
Mes terrains
Aucune sélection
Mes maisons + terrains
Aucune sélection
Construction d'une maison Beauvais (60000) 237 274 € Construction d'une maison Beauvais (60000) 237 274 €
Construction d'une maison Beauvais (60000) 237 274 €

Votre maison clé en main à Beauvais (60) pour 237 274 € n°5128811

Découvrez cette offre maison + terrain clé en main située à Beauvais dans le 60 et réalisez votre projet de construction dans l'Oise.

Partager

Maison neuve à Beauvais de 362 m² pour 237 274 € offre 5128811

Cette offre maison et terrain tout-en-un maison clé en main sur un terrain de 362 m² située à Beauvais (60000) pour 237 274 € vous est proposée par notre agence Résidences Picardes WARLUIS.

Offre maison et terrain tout inclus à Beauvais :
Pour tout renseignement, contactez uniquement StéphanePRUD'HOMME.O6 86 28 27 97 (laissez un message si besoin pour être recontacté
OU envoyez un premier contact par mail par le site en indiquant ref:PRUDHOMME + votre nom et téléphone afin que je vous rappelle sous 48 heures ) ,

GOUTTEZ AU CONFORT D'UNE MAISON NEUVE : Economique , lumineuse , bien isolée , avec une grande pièce de vie et surtout garantie 10 ans..

Vous souhaitez devenir propriétaire d'une maison neuve …
Résidences Picardes (du groupe BDL) vous propose un projet de construction d’une maison personnalisée et moderne
Lieu et terrain :
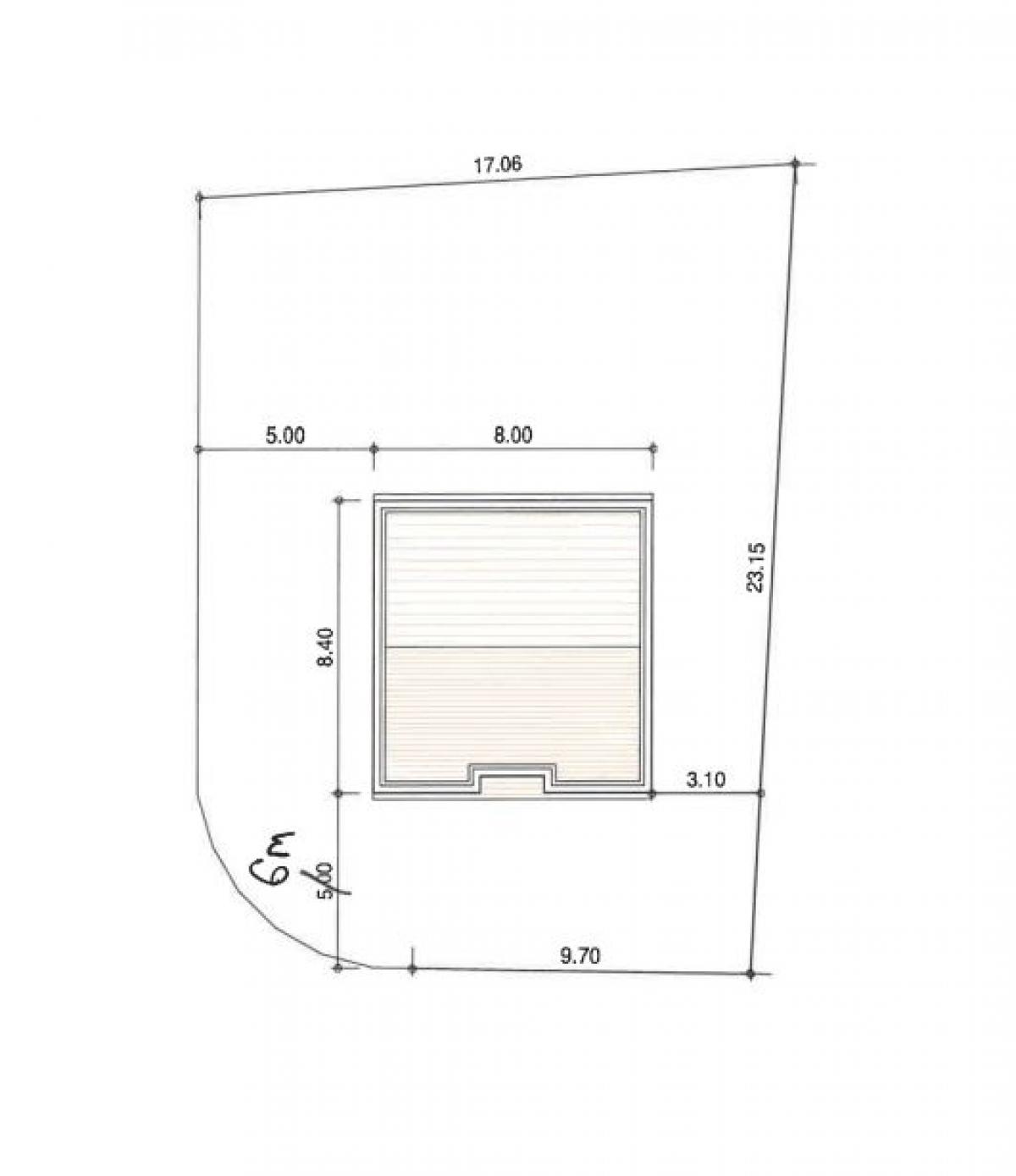
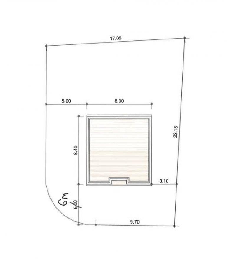
sur un terrain viabilisé de 362 m2 situé sur la commune de « BEAUVAIS », situé entre « SAINT PAUL et THERDONNE », proche WARLUIS et de toutes commodités (commerces, écoles, etc …).
Accès rapide : nationale , autoroute , gare
La maison :
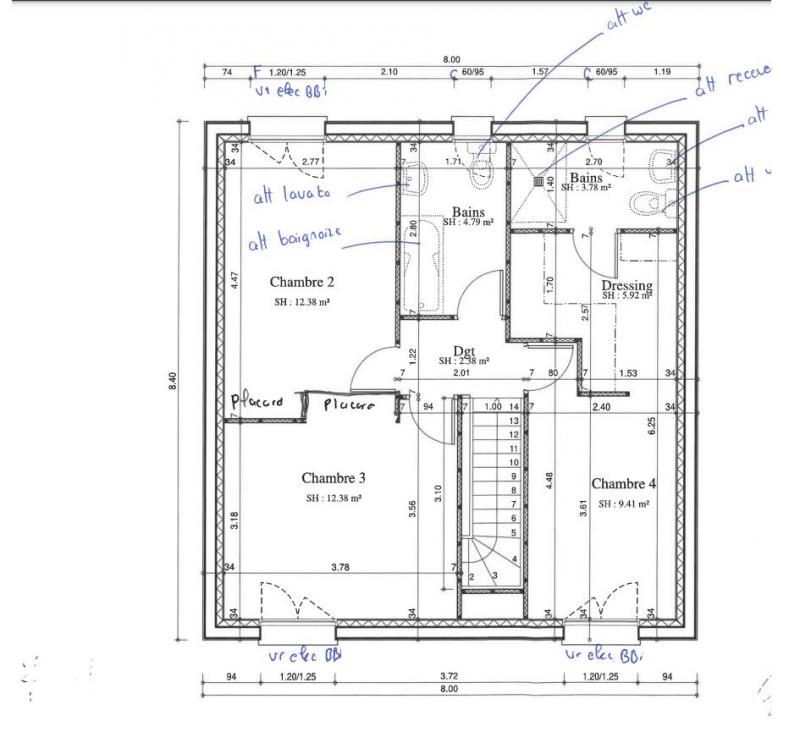
Cette maison neuve de basse consommation de 103 m2 habitable en R+1, , offre de belles prestations et se compose d’un bel espace de vie ouvert avec baie vitré et cuisine ouverte d’environ « 38 m2  », « avec 4 chambres »,
 cellier ,etc …
Détails des préstations :
Ce pavillon , construit avec les toutes dernieres normes de construction RE2020 , est confortable et très performant avec son élévation en bloc terre cuite, son isolation ultra développée , ses menuiseries en pvc avec volets roulants électriques centralisés, sanitaires , chauffage économique
par pompe à chaleur, éventuellement plancher chauffant , enduit gratté , tuiles plate en terre cuite ,carrelages pour les pièces de vie en 45X45, normes RE 2020 et test d’étanchéité.
Son équipement connecté vous permettra de gérer intelligemment à distance le chauffage ainsi que la gestion par téléphone des volets roulant

Construction d'une maison Beauvais (60000) 237 274 € offre 5128811

  • Département : OISE (60)
  • Commune : Beauvais
  • Surface totale : 362
  • Prix du terrain : 237 274 €
  • Date de mise en ligne : 02/04/2026
Construction d'une maison Beauvais (60000) 237 274 €
Et aussi...
Mentions légales
  • Terrain proposé par un partenaire foncier selon disponibilités (hors droit d'enregistrement et frais de notaire).
  • Maison proposée avec un contrat de construction de maison individuelle (hors branchements et raccordements, papiers peints, peintures, revêtement de sol dans les chambres, restants à charge du client).
    Construction conforme à la RE2020.
    Assurances et garanties du constructeur comprises (RC professionnelle, décennale, dommage ouvrage).
nos offres maison + terrain à moins de 20 km Votre maison neuve à proximité de Beauvais dans l'Oise

C'est grâce à notre important réseau de partenaires fonciers que Résidences Picardes, filiale du Groupe BDL, est capable de vous proposer une liste non exhaustive d'offres maisons clé en main aux alentours de Beauvais et régulièrement mise à jour par nos agences.

Trouvez ainsi votre maison neuve dans l'Oise ou établissez votre projet de construction en choisissant l'un de nos terrains à bâtir dans le 60 et un modèle de maison !

Intéressée par cette offre à Beauvais dans l'Oise ?

Faites-nous part de votre demande et de votre projet construction : Résidences Picardes, premier constructeur de maisons en Picardie, réalise votre étude gratuite !

Directement en agence
En ligne
Demande d'informations, devis gratuit, rendez-vous avec un expert Résidences Picardes ?
Faites-nous part de votre demande !
Chargement...
Informations complémentaires
protection par reCAPTCHA -
Vous ne trouvez pas d'offre qui vous convienne ?

Inscrivez-vous à l'une de nos alertes terrains et recevez les dernières offres maison et terrain mises en ligne chaque semaine dans le département de votre choix !

Recevoir chaque semaine nos dernières offres
Inscrivez-vous aux alertes terrain et recevez par mail les dernières offres mises en ligne.
Chargement...
protection par reCAPTCHA -